SUSO

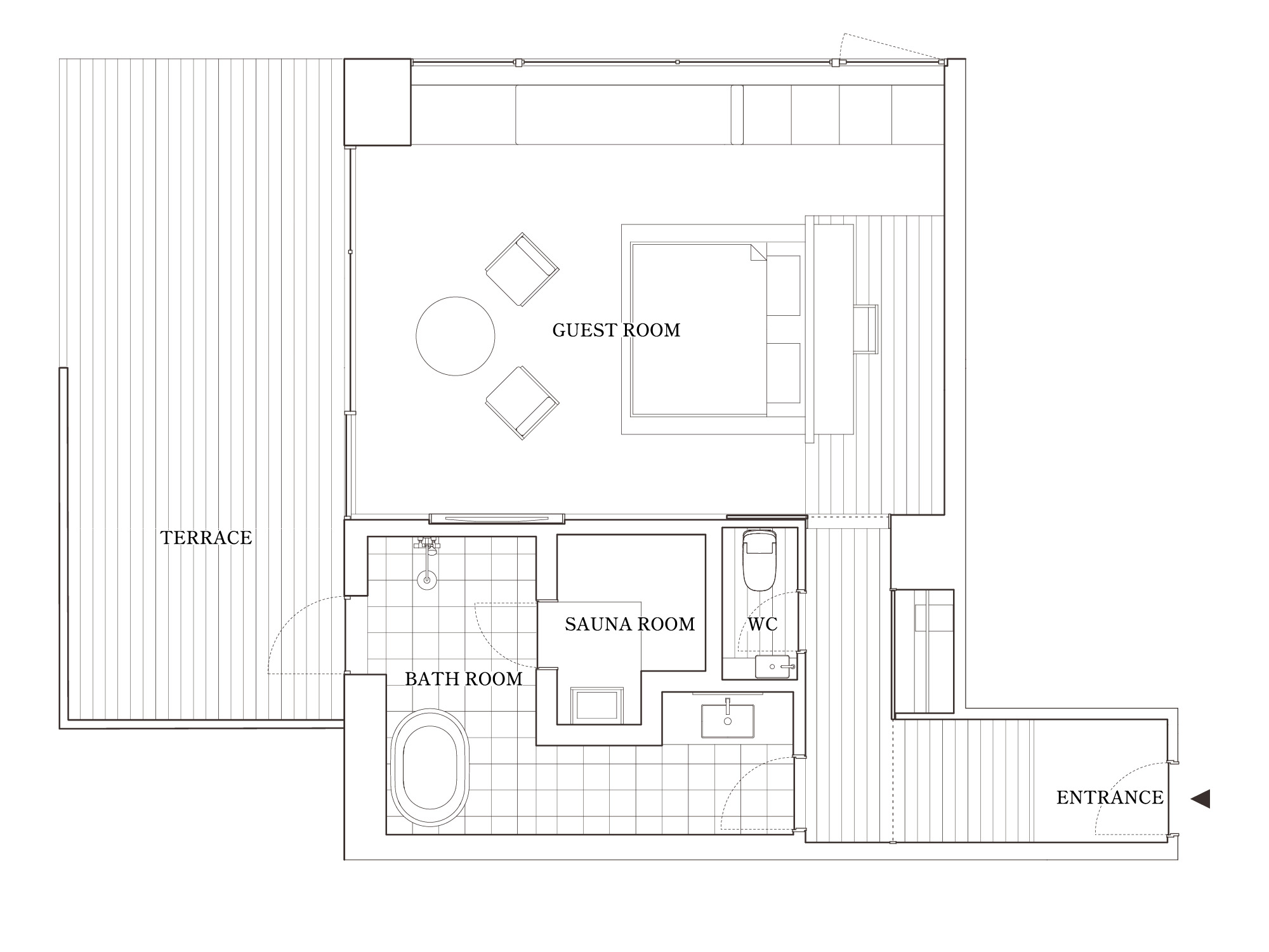
七尾湾に向かって2方向に開かれた、もっとも広く開放的な特別室。専用のサウナと広々としたテラスを備え、滞在中ご自由にお使いいただけます。

タイプ
専用サウナのある特別室
面積
67 ㎡
ベッド
キングまたはツイン
定員
1〜2名様

PAGE TOP